U or Circular driveway

by Jayant Das
(nova, va)

U or Circular Driveway

U or Circular Driveway

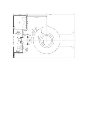
I am submitting the scaled drawing to my question on the topic 'U or Circular driveway '

The design is slightly incorrect as the diameter will be 55 ft. What is the minimum neck ie from the front to the beginning of the circle?

HI! The diameter of this circular drive will work for cars and small trucks. A few comments about the plan you've submitted. I can't tell the width of the driveway. It appears to be one car wide. It's advisable to have a circle widen by the front door to 18-20' so two cars can pass one another. This will eliminate a "bottle neck " situation. I do think the circle works fine. I"d just take these points into consideration. You have a nice planting space in front of the garage area to soften or screen the garage doors. People's first tendency is to plant something tall in the center of the circle. Remember you want to enhance the appearance of the front door. If you need screening from the street, install screen plants at the front property line by the street. Use the circle for low plantings or a low focal point with plantings that will give your entrance that "wow" factor. This is the place to show off your house and make a beautiful entrance to your home.
Thanks so much for submitting your question. Would love to see a photo when you're done.

Nancy

Click here to post comments

Join in and write your own page! It's easy to do. How? Simply click here to return to Landscape Design Questions.